0

LA MOLE / GOLFE DE ST TROPEZ Immeuble mixte NEUF professionnel & habitation

La Môle (83310)
Réf : 6806

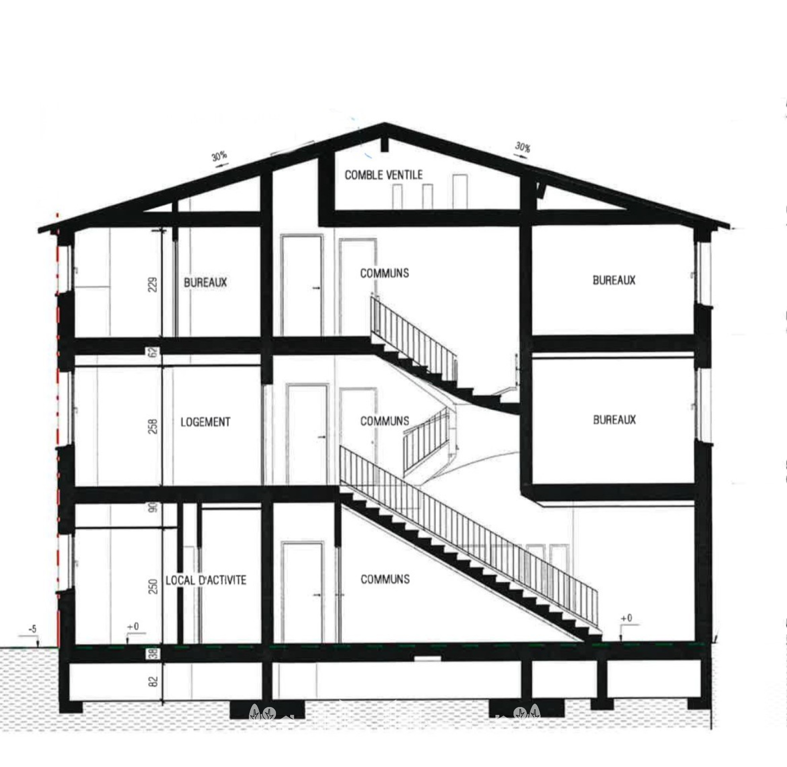
Investisseurs, entreprises, les 3 Agences vous proposent cet immeuble mixte neuf de 612 m² équipé d'un ascenseur ,composé comme suit :

- Au RDC = 2 entrepôts de 82 m² chacun .

- Au 1er étage = 2 appartements T2 de 30 m² + 2 espaces de co-working comprenant salle d'attente, sanitaires/cuisine, différents espaces de travail/ bureaux lumineux et fonctionnels. Les deux espaces d'une surface totale de 122 m² communiquent et peuvent être reliés ou séparés selon les besoins.

- Au deuxième étage = 2 autres espaces de travail de 82 m² chacun et identiques dans la distibution des pièces comprenant 3 bureaux- 1 salle de réunion- cuisine - sanitaires -loggia de 8.5m².

Prêt à l'emploi car neuf, Il est équipé d'un ascenseur et boites aux lettres dans le hall commun.

Parkings privatif devant l'immeuble et parking libre et facile dans la zone.

Une excellente visibilité sur l'axe routier principal de LA MOLE saura mettre en valeur votre enseigne ou celles de vos futurs locataires à seulement 30 minutes de St TROPEZ.

Fonctionnel et modulable, cet immeuble prêt à l'emploi car neuf et meublé offrant des prestations haut de gamme saura répondre aux besoins d'entreprises/ cabinets/ professions libérales et activités indépendantes diverses.Afin d'en dégager une rentabilité, il peut aussi être mis en location entièrement ou en partie .

L'équipe des 3 Agences sera ravie de vous accompagner dans votre projet, contactez-nous au 04.94.54.59.16 pour plus de détails.




Prix du bien 2 080 000 €

Caractéristiques du bien

Caractéristiques Valeurs
Code postal 83310
Surface habitable (m²) 612 m²
Nombre de niveaux 3
Ascenseur OUI
Mode de chauffage Autre
Type de chauffage Autre
Format de chauffage Individuel
Terrasse OUI
Année de construction 2023

Infos financières

Caractéristiques Valeurs
Prix de vente honoraires TTC inclus 2 080 000 €

Bilans énergétiques

DPE GES
Ce bien vous intéresse ?
Fieldset par défaut
Fieldset par défaut
Validation

* Champs obligatoires

Contacter l'agence
Validation
Les informations recueillies sur ce formulaire sont enregistrées dans un fichier informatisé par La Boite Immo agissant comme Sous-traitant du traitement pour la gestion de la clientèle/prospects de l'Agence / du Réseau qui reste Responsable du Traitement de vos Données personnelles. La base légale du traitement repose sur l'intérêt légitime de l'Agence / du Réseau. Elles sont conservées jusqu'à demande de suppression et sont destinées à l'Agence / au Réseau. Conformément à la loi « informatique et libertés », vous disposez des droits d’accès, de rectification, d’effacement, d’opposition, de limitation et de portabilité de vos données. Vous pouvez retirer votre consentement à tout moment en contactant directement l’Agence / Le Réseau. Consultez le site https://cnil.fr/fr pour plus d’informations sur vos droits. Si vous estimez, après avoir contacté l'Agence / le Réseau, que vos droits « Informatique et Libertés » ne sont pas respectés, vous pouvez adresser une réclamation à la CNIL. Nous vous informons de l’existence de la liste d'opposition au démarchage téléphonique « Bloctel », sur laquelle vous pouvez vous inscrire ici : https://www.bloctel.gouv.fr Dans le cadre de la protection des Données personnelles, nous vous invitons à ne pas inscrire de Données sensibles dans le champ de saisie libre.
Ce site est protégé par reCAPTCHA, les Politiques de Confidentialité et les Conditions d'Utilisation de Google s'appliquent.